Paris Taclet | surélévation maison
<   10|11   >
SITE
Paris 20ème
MAITRISE D'OUVRAGE
Privée
MAITRISE D'OEUVRE
Verdier + REBIERE architectes +Jeanne MURAWIEC architecte
I D Ossature BET Structure
PROGRAMME
Surélévation d'une maison individuelle
unité d'habitation avec création de 2 chambre + 1 salle d'eau
SURFACE
création 26 m² SHAB / 40 m² au sol env.
COUT
145 000 € HT
(compris démolition)
CALENDRIER
Dépot PC sept. 2024
Livraison juillet 2025
LE CONTEXTE
La maison du 9 rue Taclet fut construite à la fin du XIXe siècle. Les différentes maisons de ces ilots, datant de la même époque, sont de taille similaire, avec néanmoins une grande variété de façades et de volumes de toiture suite aux évolutions successives qu’elles ont connues.
La façade principale de cette maison est la façade nord-est, donnant sur le jardin. Elle est symétrique et comporte au centre, une porte d’entrée munie d’un petit auvent en verre et quatre fenêtres alignées deux à deux avec des garde-corps en ferronnerie. Les chaînages aux angles, les encadrements des fenêtres sur toute la hauteur du corps de la maison et le soubassement gris dessinent les grandes lignes qui contrastent avec l’enduit beige qui recouvre la façade. La façade sud-est, à l’aplomb de la rue Taclet, est de la même écriture, alors que la façade côté voisin ne comporte aucune modénature. La 4eme façade, que l’on peut appeler façade arrière, est un mur pignon, en brique surmonté d’une partie enduite en ciment. Le volume de la couverture à 3 pans en tuile, respectant également la symétrie du côté jardin, couronne la maison avec un léger débord engendré par la gouttière.
Cette maison comporte actuellement, un séjour cuisine en rez de chaussé et 2 chambres à l’étage avec une salle
de bains. A cela s’ajoute en rez de chaussée, une petite buanderie située entre la maison et celle du voisin, ainsi
qu’un sous-sol utilisé pour divers stockage et équipement technique.
LE PROJET
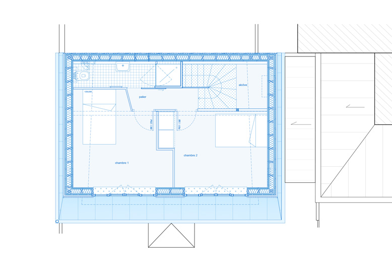
La maison ne possédant que deux chambres à l’étage, les propriétaires souhaitent ajouter deux pièces et une petite salle de bain pour permettre à leurs enfants bientôt adolescents d’avoir chacun leur chambre. Également, ils souhaitent un bureau pouvant aussi servir de chambre d’amis. La surélévation, ou la réhausse des combles est apparue comme la solution permettant de répondre à leurs attentes. Le gabarit du PLU en vigueur, permet cette augmentation de volume qui permettra de créer une surface de plancher habitable d’environ 26 m².

. Volume de toiture et choix de matériaux « parisiens »
Ayant conscience que les qualités urbaines, architecturales et paysagères de ce quartier de Maisons et Villas sont à respecter, le choix a été fait de surélever la maison principale en proposant une volumétrie et des matériaux faisant davantage référence à une toiture qu’à un attique. Le projet propose donc de créer une «toiture habitable » à la place des combles, comprenant les deux chambres et la petite salle de bain. Une réhausse en maçonnerie enduite, inclue dans le gabarit du PLU autorisant de monter à la verticale jusqu’à 7m de haut, sera ajoutée aux 4 façades permettant ainsi la réalisation d’un chainage nécessaire à la stabilité du nouvel ensemble.
La partie couverture,avec charpente bois et couverture en zinc naturel à joint debout, est conçue avec un volume symétrique en lien avec la façade principale sur jardin. Pour entrer dans le volume imposé par le PLU, une façade verticale en retrait de l’égout donnera un éclairage généreux aux 2 chambres nouvelles. Ce recul de 80cm permettra de mettre en valeur le corps de la maison et sa façade noble. Les percements seront également symétriques. Étant orientés nord, ils reprendront l’écriture de ceux d’un atelier d’artistes : un percement dans toute la longueur, recoupé par des menuiseries en bois peint créant des verticalités marquées. Les deux trames centrales seront traitées en parties pleines afin de préserver l’intimité des habitants sans rompre le rythme de la façade.
Les pans latéraux suivront de manière symétrique, la pente imposée par le gabarit PLU, (1 sur 2) côté rue Taclet.
A l’arrière, le mur pignon sera réhaussé par un mur enduit qui prolonge le mur pignon aveugle qui sera également enduit.
Afin de pouvoir ventiler naturellement la cage d’escalier et d’y faire pénétrer la lumière du jour, un velux sera installé en toiture sur le versant nord.